置信原墅140㎡现代简约装修风格效果图

2022-05-13 来源:名匠装饰 查看人数:2131

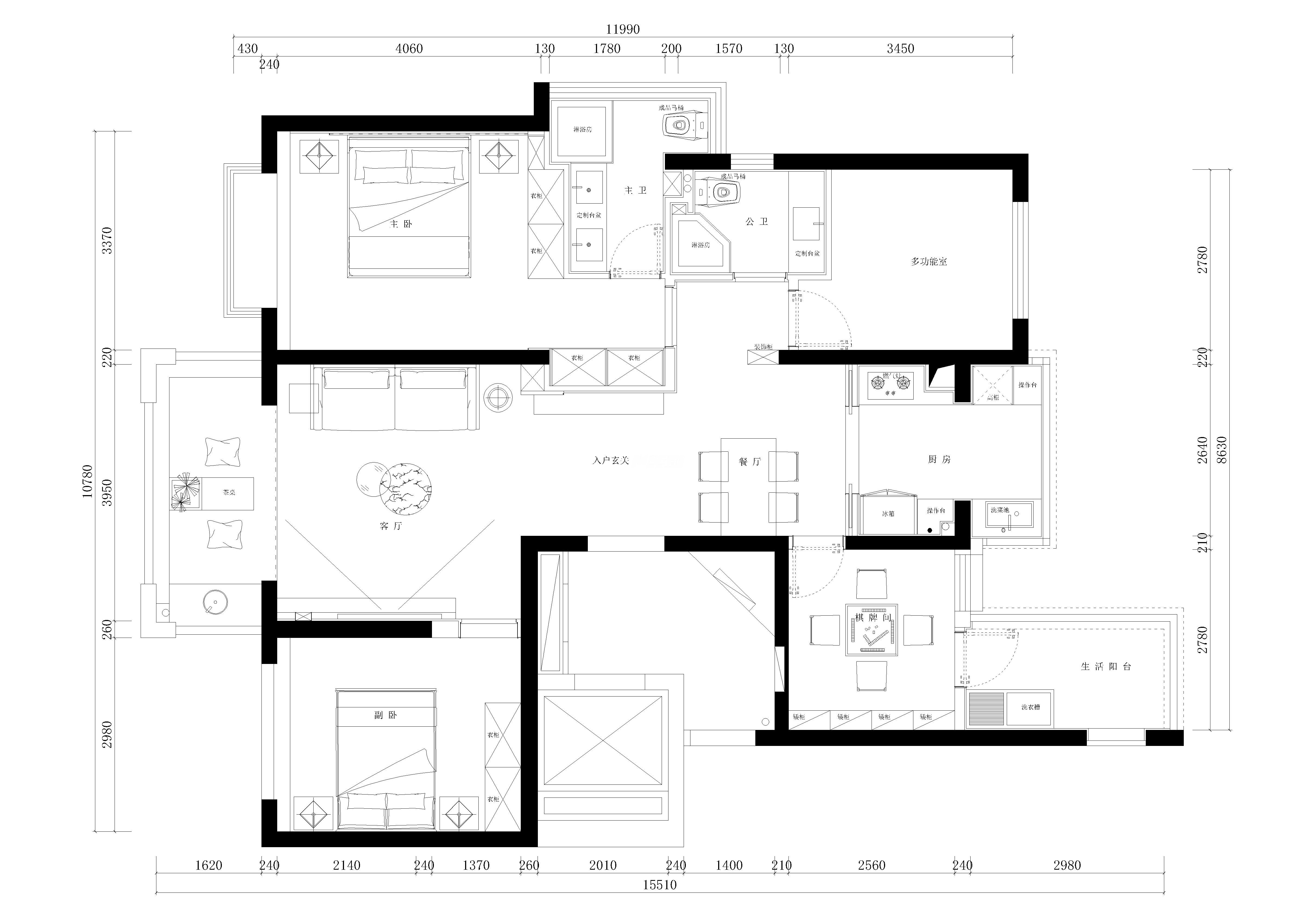
置信原墅140㎡平面图

置信原墅140㎡客餐厅现代简约装修风格效果图置信原墅140㎡客餐厅现代简约装修风格效果图

置信原墅140㎡主卧现代简约装修风格效果图

立即免费获取

在线咨询

免费量房

智能报价

参观工地

返回顶部

算一算你家装修需要多少钱?

装修报价

已有9919 户获取